|
|
Проекты домов
ПРОЕКТ FH 194.2
| |
 |
|
| Общая площадь дома, кв.м |
194 |
| Жилая площадь дома, кв.м |
120 |
| Ванные |
2 |
| Комнат всего |
8 |
| Спальни |
5 |
|
 |
| Ширина дома, м |
 |
8,4 |
| Длина дома, м |
12,3 |
| Входы |
2 |
| Гараж/балкон |
нет/да |
| Сауна |
да |
|
| Внешний вид |
 |
СТОИМОСТЬ ДОМА - 2 430 000 рублей
Фундамент и лестница - бесплатно!
Включая внешнюю отделку, утепление, окна, двери и базовую инженерию.*
|
Фасады
|
 |
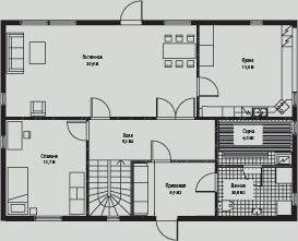
Планировка 1 этажа
|
 |
1 этаж (кв.м.)
Гостинная - 30,8
Кабинет - 13,7
Кухня - 15,0
Прихожая - 8,4
Холл - 9,2
Ванная - 6,4
Сауна - 6,0
|
|
Планировка
2 этажа
|
 |
2
этаж (кв.м.)
Гостинная - 13,3
Спальня - 13,7
Спальня - 17,1
Спальня - 15,0
Холл - 7,7
Санузел - 6,3
Кладовая - 20
Тех.комната - 20
|
| |
| |
| |
В стоимость
дома входит:
1. Монтаж каркаса дома на фундаменте
заказчика.
2. Полная внешняя отделка. Фасады - пластиковый сайдинг, кровля
- металлочерепица, пластиковая водосточная система.
3. Пластиковые окна с энергосберегающим покрытием и микровентиляцией.
4. Металлическая входная дверь, межкомнатные двери с замками и ручками.
5. Утепление эковатой. Стены - 150 мм, кровля, пол первого этажа
- 200 мм, перекрытия, перегородки - 100 мм.
6. Внутренняя обшивка стен и потолков ГКЛ в один слой, без шпаклевания.
7. Базовые инженерные системы. Электрика - 4 точки на помещение,
водоснабжение, канализация, вентиляция - стояки.
8. Стоимость входных групп, террас и балконов - от 4900 руб/кв.м.
Стоимость фундаментов - от 144 тыс руб (свайно-винтовой).
Стоимость базовой внутренней отделки - от 1980 руб за м2 общей
площади дома.
Лестницы - от 20 тыс руб, при заказе чистовой отделки - бесплатно.
|
|